Project Detail

University - Alumni building

Total area

46,500 sq.ft

location

University of Michigan

Design

Paul N. Poloz

About the project

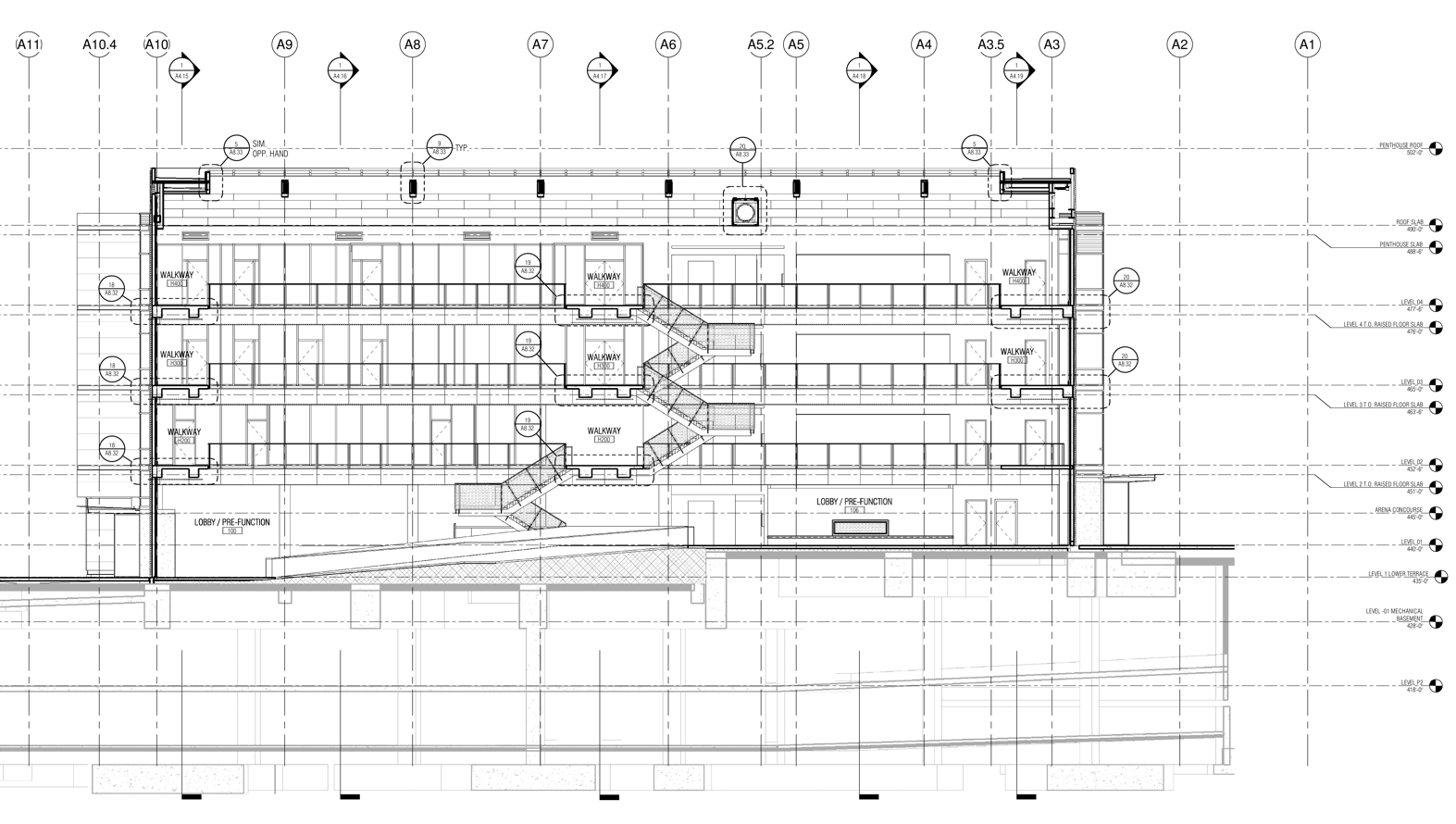
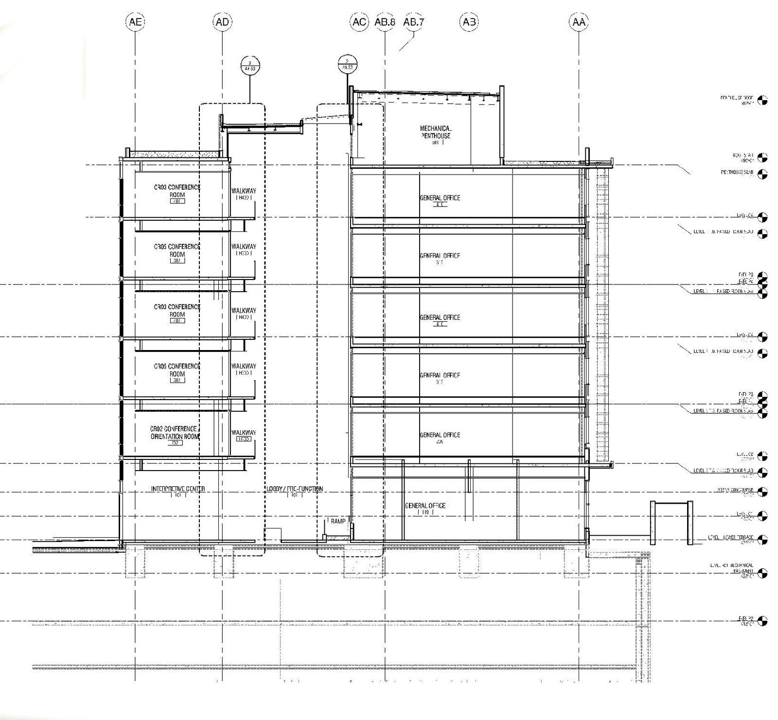
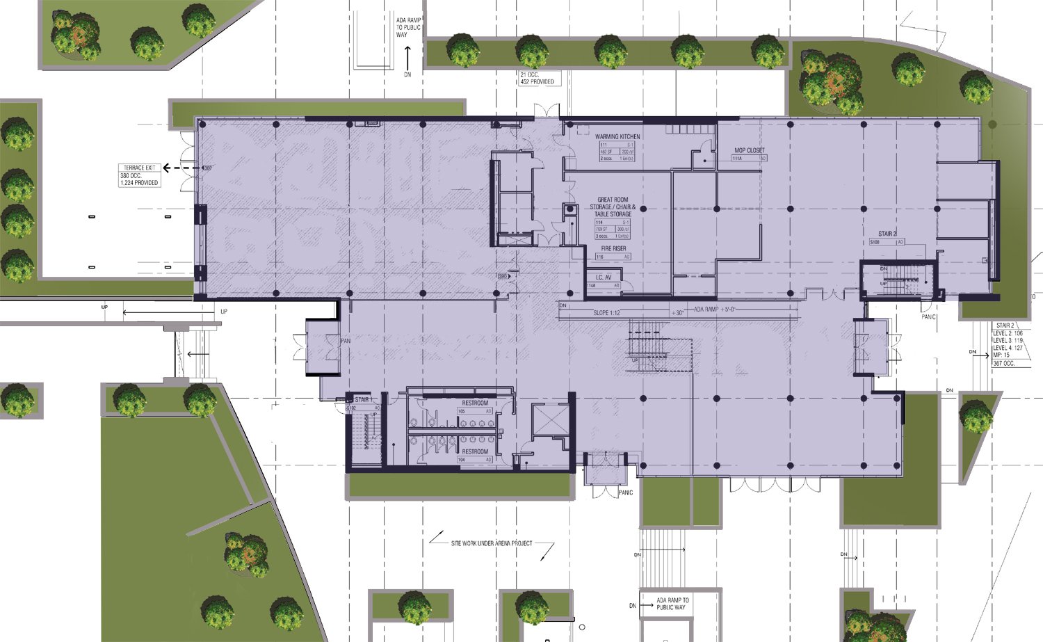
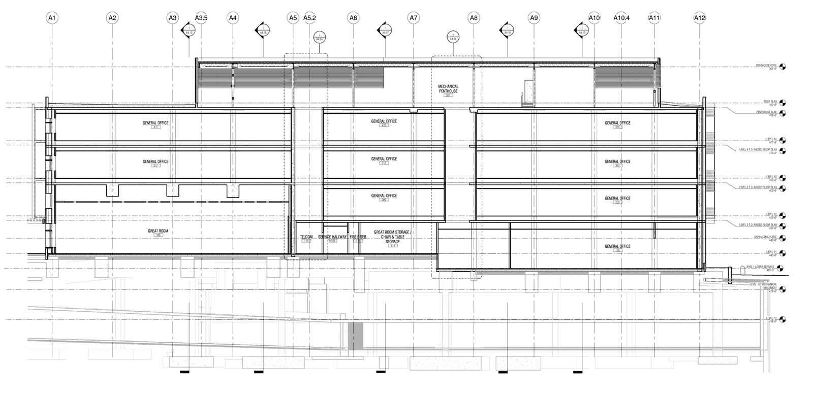
The new Alumni Center of 46,500 sq.ft. is to provide space for alumni operations in University of Michigan. This ambitious project offers an opportunity to play a critical role in shaping the future academic life and students’ activities of the University.

Great lobby – 5,250 Square Feet

Lower Atrium (Great Hall) – 390 Square Feet 0

Front Patio – 4,400 Square Feet

General office – 3,680 Square Feet

Entire First floor – 16,239 Square Feet

Entire Second floor – 14, 275 square Feet

Entire Third floor – 15,960 Square Feet 

Project gallery