Project Detail

University Alumni Center

Total area

92,000

location

Design

Paul N. Poloz

About the project

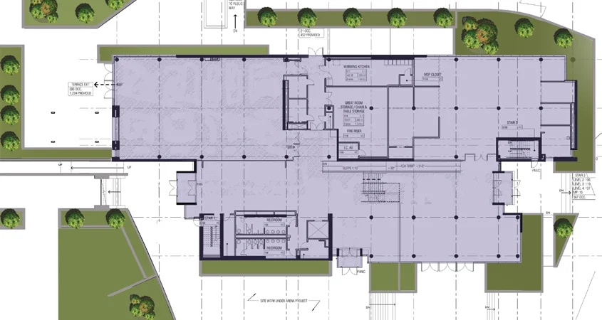
At 92,000 square feet the University Alumni Center is an impressive gathering place for alumni and friends. The building contains a 5-story open great hall, banquet room for up to 600 people, 16 conference rooms available for alumni and friends to rent and four smaller conference rooms free to alumni, 2-art galleries and staff offices.

ARCHITECTURAL CONCEPT

Lorem ipsum dolor sit amet, consectetur adipiscing elit, sed do eiusmod tempor incididunt ut labore et dolore magna aliqua. Ut enim ad minim veniam, quis nostrud exercitation ullamco laboris nisi ut aliquip ex ea commodo consequat. Duis aute irure dolor in reprehenderit in voluptate velit esse cillum dolore eu fugiat nulla pariatur. Excepteur sint occaecat cupidatat non proident, sunt in culpa qui officia deserunt mollit anim id est laborum.

Project gallery